kornhaus bad waldsee

fertigstellung 2003

 

 

 

 

 

 

 

  

 

 

 

 

 

 

 

 

 

 

 

 

 

 

 

 

 

 

 

 

 

 

 

 

 

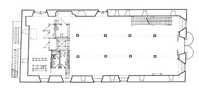
Die Bauaufgabe war der Rückbau der Erdgeschoss-Lagerhalle des mittelalterlichen Kornhauses zu einer Museumsgalerie des Heimatmuseums. Das Gebäude wird vom Eingang an behindertengerecht durch den Bau eines Personenaufzuges.

 

Die Säulenhalle, als Museumseingang zu den oberen Etagen, bietet jetzt auch Möglichkeit und Raum für zusätzliche Nutzungen wie Wechselausstellungen und Veranstalltungen.

 

Die Zwischenwände der vielen Einzelräume der zugebauten Lagerhalle sind entfernt und die Säulenhalle ist als Ganzes wieder erlebbar gemacht. Die wenigen Einbauten lehnen sich nicht an die antiken Wände und Stützen, sondern stehen wie ein Möbel frei im Raum. Die Säulenhalle als Museumseingang zu den oberen Etagen bietet jetzt die Möglichkeit un Raum für zusätzliche Nutzung wie Wechselausstellungen und Veranstaltungen.