gäste- und seminarhaus bauernschule bad waldsee

fertigstellung 2006

 

 

  

 

 

 

 

 

 

 

 

 

 

 

 

 

 

 

 

 

Städtebau - die beiden neuen Häuser fügen sich zum Fachwerkhaus und dem Haupthaus mit rundem Saal zu einer lockeren Gebäudegruppe zusammen. Es entsteht der Eindruck eines eher gewachsenen, dörflichen Charakters. Insbesondere der sich nach Süden hin öffnende Hof bleibt unangetastet.

 

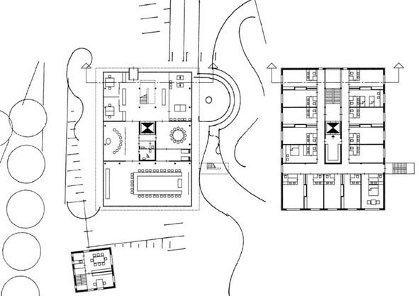
Entwurf - im Erdgeschoss, auf Platzniveau, sind die Seminar- und Gruppenräume sowie die Freizeit untergebracht. Außerdem befinden sich im Eingangsbereich zum Foyer anschließend zwei Büroräume als Info- oder Anlaufstelle. Eine großzügige Treppe führt nach oben. Hier sind auf zwei Etagen dreißig Gästezimmer mit dazugehörenden Servicebereichen angeordnet.

 

Auf Niveau des Untergeschosses ist das Gebäude über einen kleinen Hof erschlossen. Hier kann ungestört be- und entladen werden. Auch die Garagenstellplätze und die Lagermöglichkeiten sind hier untergebracht, außerdem die Personalumkleiden.

 

Im Dachgeschoss befindet sich der großzügige Speisesaal mit Blich in das grüne Blätterdach der Bäume. Die Küche mit dazugehörenden Lager- und Personalräumen findet dort auch seinen Platz. Im Sommer ist es möglich mit der Außentreppe über 11/2 Etagen die Dachterrasse zu erreichen.

 

In einem separatem Haus, mit zweckmäßigeren Abmessungen, sind auf zwei Etagen die Jugend und in einer Maisonette Wohnung der Hausmeister untergebracht.

  

Materialien und Oberflächen - Die Holzkonstruktion bestimmt auch das Erscheinungsbild des Hauses nach außen. Die mit Holzfaser gedämmte Außenwand der Zimmeretagen sind mit horizontal geschalten, gegen Verfärbung behandelte Lärchenholzbretter verkleidet. In der Eingangs- und Seminaretage lässt eine Holz- Glasfassade das Innere erkennen.